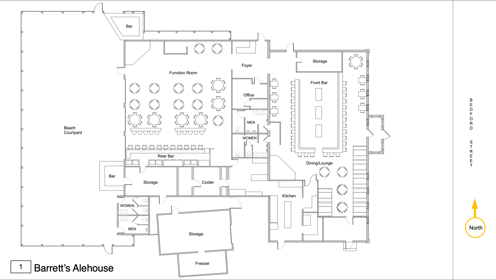
Arc Mapping
A series of graphics was created to orient viewers to the building layout relative to the women’s bathroom and the electrical circuit wiring above the ceiling. Electrical arc mapping recorded by fire investigators on the site was depicted in an above the ceiling view.
